Mieszkanie 95,98 m² podzielone na 4 apartamenty!

lokalizacja: Gdańsk, Lęborska

1 590 000,00 PLN

16 565,95 PLN

Opis nieruchomości

Na sprzedaż wyjątkowa nieruchomość o powierzchni 95,98 m², usytuowana na parterze budynku mieszkalnego. Lokal został funkcjonalnie podzielony na cztery w pełni niezależne apartamenty, co czyni go doskonałą propozycją inwestycyjną — idealną pod wynajem krótko- lub długoterminowy z wysoką stopą zwrotu.


ATUTY:
- mieszkanie zostało podzielone na 4 niezależne apartamenty,
- nowe budownictwo
- doskonała lokalizacja w jednej z najbardziej pożądanych dzielnic Gdańska,
- pełna infrastruktura handlowo- usługowa w zasięgu ręki,
- duży potencjał inwestycyjny, wysoka stopa zwrotu.

BUDYNEK:
Budynek został zaprojektowany z myślą o funkcjonalności i estetyce, łącząc nowoczesne rozwiązania z klasycznymi elementami wykończenia. Budynek wyposażony jest w nowoczesne systemy monitoringu oraz kontroli dostępu, co zapewnia mieszkańcom poczucie bezpieczeństwa.

NIERUCHOMOŚĆ:
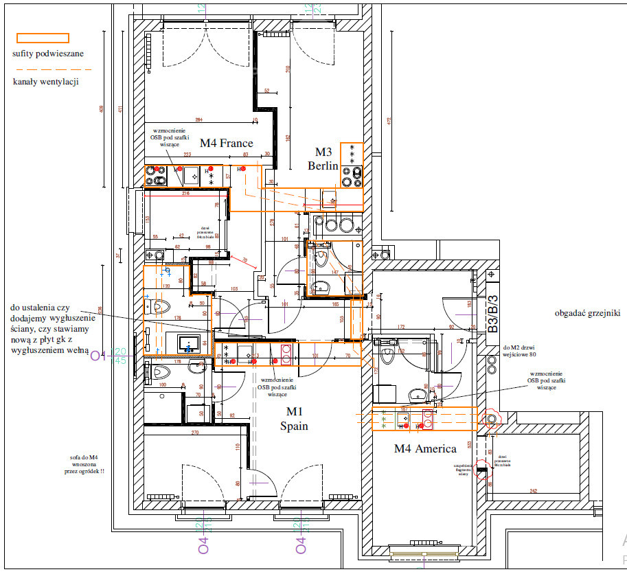
Cała powierzchnia 95,98 m² została podzielona na cztery w pełni wyposażone, komfortowe apartamenty o zróżnicowanych układach i charakterze. Wspólny korytarz z którego wchodzimy do każdego z mieszkań.

M1 - SPAIN
Przestronny apartament składający się z:
- salonu z aneksem kuchennym,
- sypialni,
- łazienki

M2 - FRANCE
Stylowy apartament w skład którego wchodzą:
- salon z aneksem kuchennym,
- sypialnia,
- łazienka.

M3 - BERLIN
Apartament typu studio, obejmujący:
- salon z aneksem kuchennym,
- łazienkę.

M4 - AMERICA
Funkcjonalny apartament z:
- salonem z aneksem kuchennym,
- sypialnią bez okna,
- łazienką.

LOKALIZACJA:
Nieruchomość mieści się w Gdańskiej dzielnicy Przymorze. Bliskość morza i liczne tereny rekreacyjne spowodowały że jest to jedno z najbardziej pożądanych miejsc z Gdańsku. Dzielnica jest bardzo dobrze rozwinięta pod względem infrastruktury oraz komunikacji (np. Galeria Przymorze, Decathlon, banki, lokale gastronomiczne, poczta, apteki oraz wiele innych).

Przymorze to dzielnica dobrze skomunikowana z resztą Trójmiasta. W pobliżu znajdują się przystanki autobusowe, tramwajowe, a także stacja SKM, co zapewnia szybki dostęp do centrum Gdańska, Wrzeszcza czy Sopotu. Wygodny dojazd do obwodnicy Trójmiasta i innych kluczowych punktów miasta.

Mieszkańcy okolicznych zabudowań wielorodzinnych bez problemu odnajdą wszystko to, co im potrzebne.

DODATKOWE INFORMACJE:
- 1 miejsce postojowe w hali garażowej i 1 miejsce naziemne- obligatoryjny zakup 100.000 zł


ZAPRASZAM NA PREZENTACJĘ!

Film o nieruchomości

Kontakt do opiekuna:

Property Gold

Dorota Rynko
Nieprawidłowy adres E-mail
Mapa

Strona korzysta z plików cookie w celu realizacji usług zgodnie z Polityką prywatności. Możesz określić warunki przechowywania lub dostępu do cookie w Twojej przeglądarce.